29.09.2018
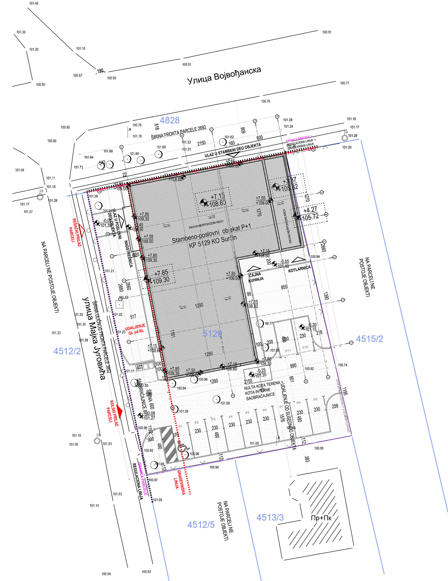
Stambeno poslovni objekat, Surčin, Beograd
Stambeno poslovni objekat, Surčin, Beograd
Kratak opis : Stambeno poslovni objekat P+1
Površina : cca 858m²
Investitor : Predškolska ustanova "Dečiji Osmeh"
Lokacija : Surčin , Beograd , Srbija
Godina : 2018
Faze : Urbanistički projekat, Idejno rešenje, Projekat za gradjevinsku dozvolu, Projekat za izvodjenje
arch build civileng