04.02.2014
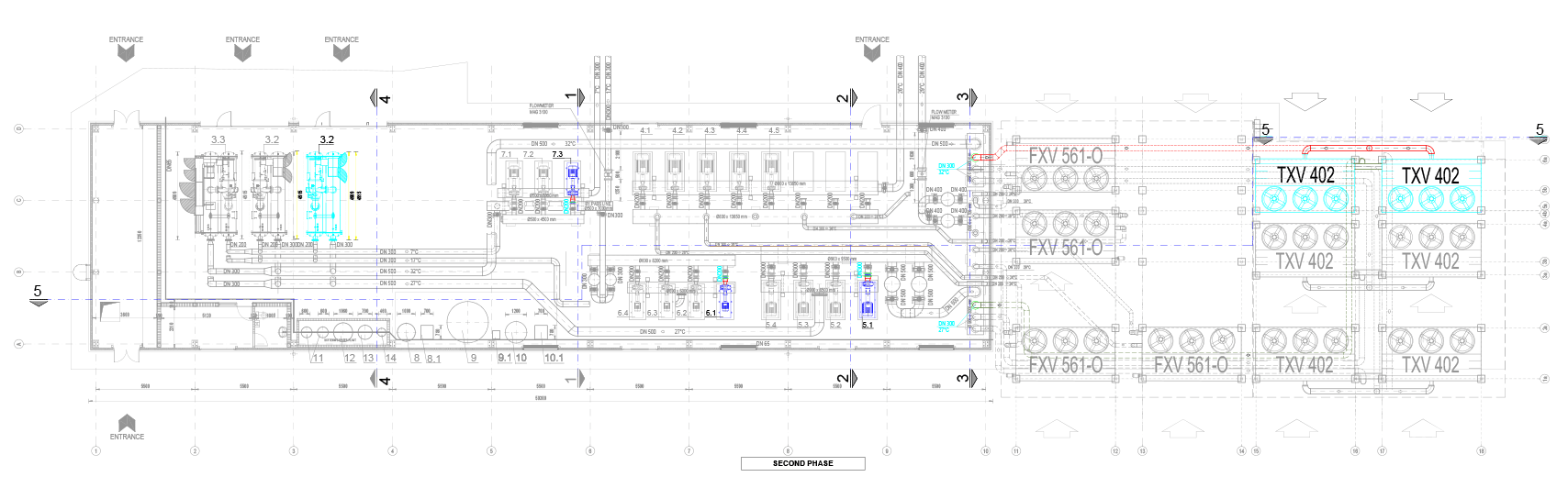
Rashladna mašina u Lakirnici u FCA
Kratak opis: Rashladna mašina u Lakirnici u FCA
Investitor: FCA Srbija
Godina: 2014.
Lokacija: Kragujevac, Srbija
Faze: Projekat za izvođenje
eng ind instal