11.06.2014
Objekat PP zastite

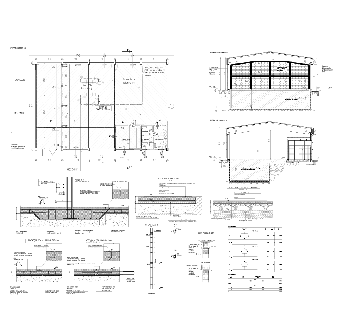
Objekat PP zaštite, FCA

Kratak opis: Rekonstrukcija objekta sa prenamenom u Centar za Protivpožarnu jedinicu sa garažom i priručnim magacinom.

Površina: 322,64 m²

Investitor: FCA Srbija

Lokacija: Kosovska 4, Kragujevac

Godina: 2014-15

Faze: Idejno rešenje/Idejni projekat; Glavni projekat; Stručni nadzor