Montažne kućice za Švedsko tržište
2020.
arch build int
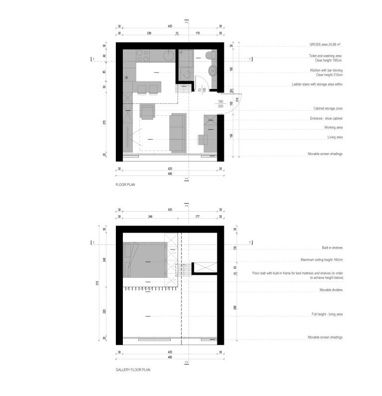
Površina: do 25 m², maksimalna visina 4m
Investitor: Privatno lice
Lokacija: Švedska
Godina: 2020
Faze: Projekat enterijera, Idejno rešenje
2020.
arch build int
Površina: do 25 m², maksimalna visina 4m
Investitor: Privatno lice
Lokacija: Švedska
Godina: 2020
Faze: Projekat enterijera, Idejno rešenje
Copyright © 2026 Idest d.o.o. Sva prava su zadržana.