Milica Srećković 26 - Kragujevac, Srbija
  +381 34 206549      kontakt@idestgroup.com
     

Medicinski centar u FCA

 2014.

eng ind instal

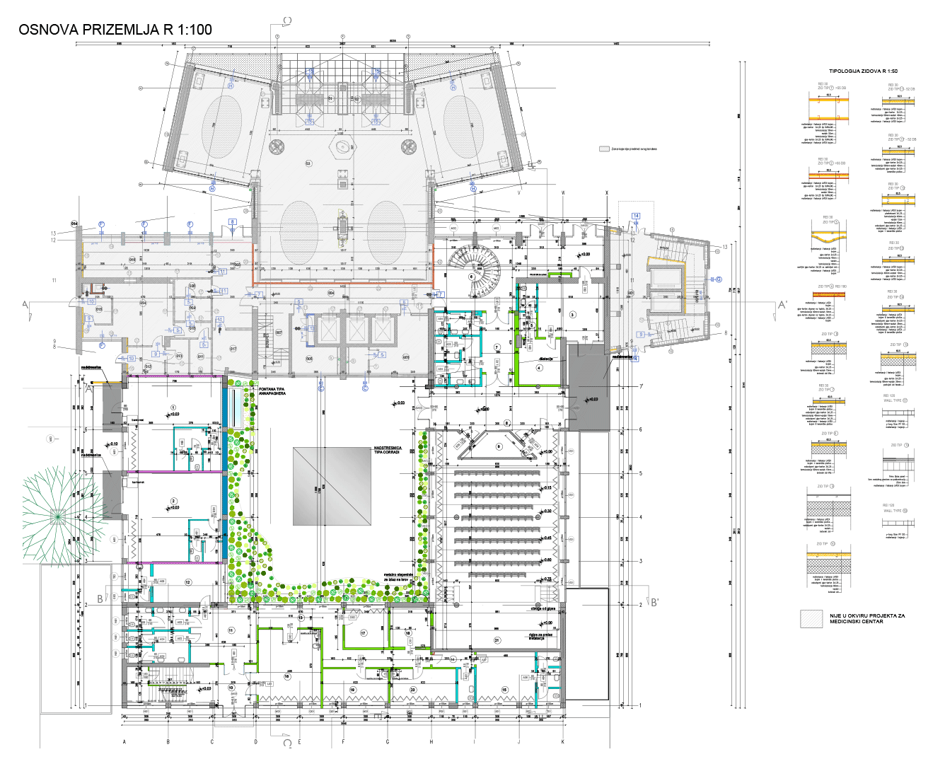
Kratak opis: Predmet projekta je rekonstrukcija dela bivše upravne zgrade (interna oznaka br. 19) u okviru FCA Srbija. U radove na rekonstruckiji je uključen deo prizemlja i prvi sprat.

Postojeća zgrada 19 je imala pretežno administrativnu upotrebu. Izgradjena je kao sistem kombinovan od centralnog višeg dela spratnosti P+9 i nižeg blokovskog dela sa atrijumom spratnosti P+1.

Površina: Bruto površina prizemlja - 806 m² a prvog sprata - 1248 m²

Investitor: FCA Srbija

Lokacija: Kragujevac, Srbija

Godina: 2014.

Faze: Projekat za izvodjenje; Elektro i mašinske instalacije - izvedeno