Milica Srećković 26 - Kragujevac, Srbija
  +381 34 206549      kontakt@idestgroup.com
     

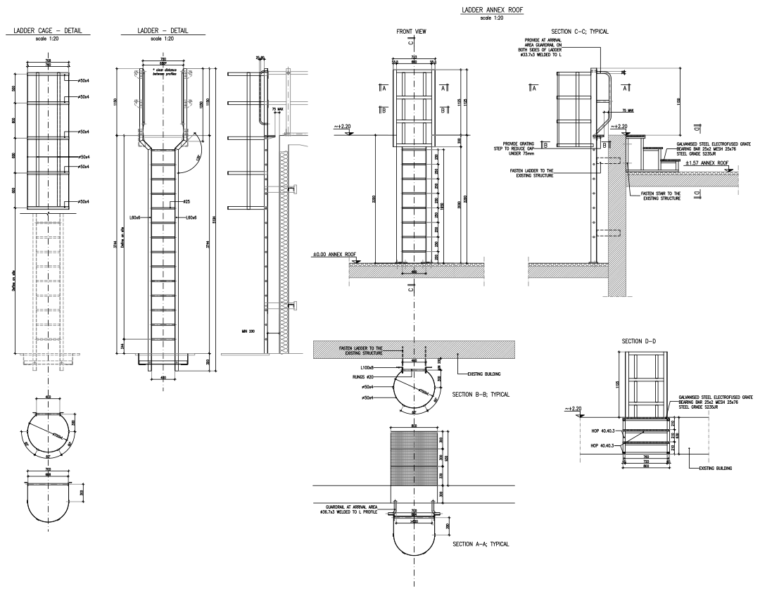
Krovne staze i penjalice, FCA Srbija

 2015.

eng ind civileng

Kratak opis: Izrada tenderske dokumentacije i nadzor nad radovima na postavljanju sigurnosnih krovnih penjalica i staza za bolji pristup, manevrisanje i održavanje industrijskih krovnih površina.

Dužina: 6.820,00 m

Investitor: FCA Srbija

Lokacija: Kragujevac

Godina: 2015-16

Faze: Idejno rešenje; Tenderska dokumentacija; Stručni nadzor