Izložbeni centar FCA
2014.
arch int instal
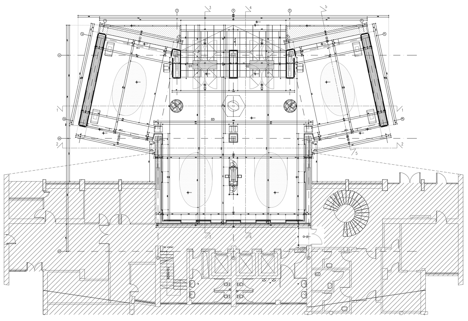
Izložbeni salon, FCA
Kratak opis: Rekonstrukcija dela prizemlja bivše upravne zgrade sa uređenjem enterijera za potrebe Izložbenog salona
Površina: 572,50 m²
Investitor: FCA Srbija
Lokacija: Kosovska 4, Kragujevac
Godina: 2014-15
Faze: Projekat za građevinsku dozvolu, Projekat za izvođenje; Tenderska dokumentacija; Projekat izvedenog stanja