Milica Srećković 26 - Kragujevac, Srbija
  +381 34 206549      kontakt@idestgroup.com
     

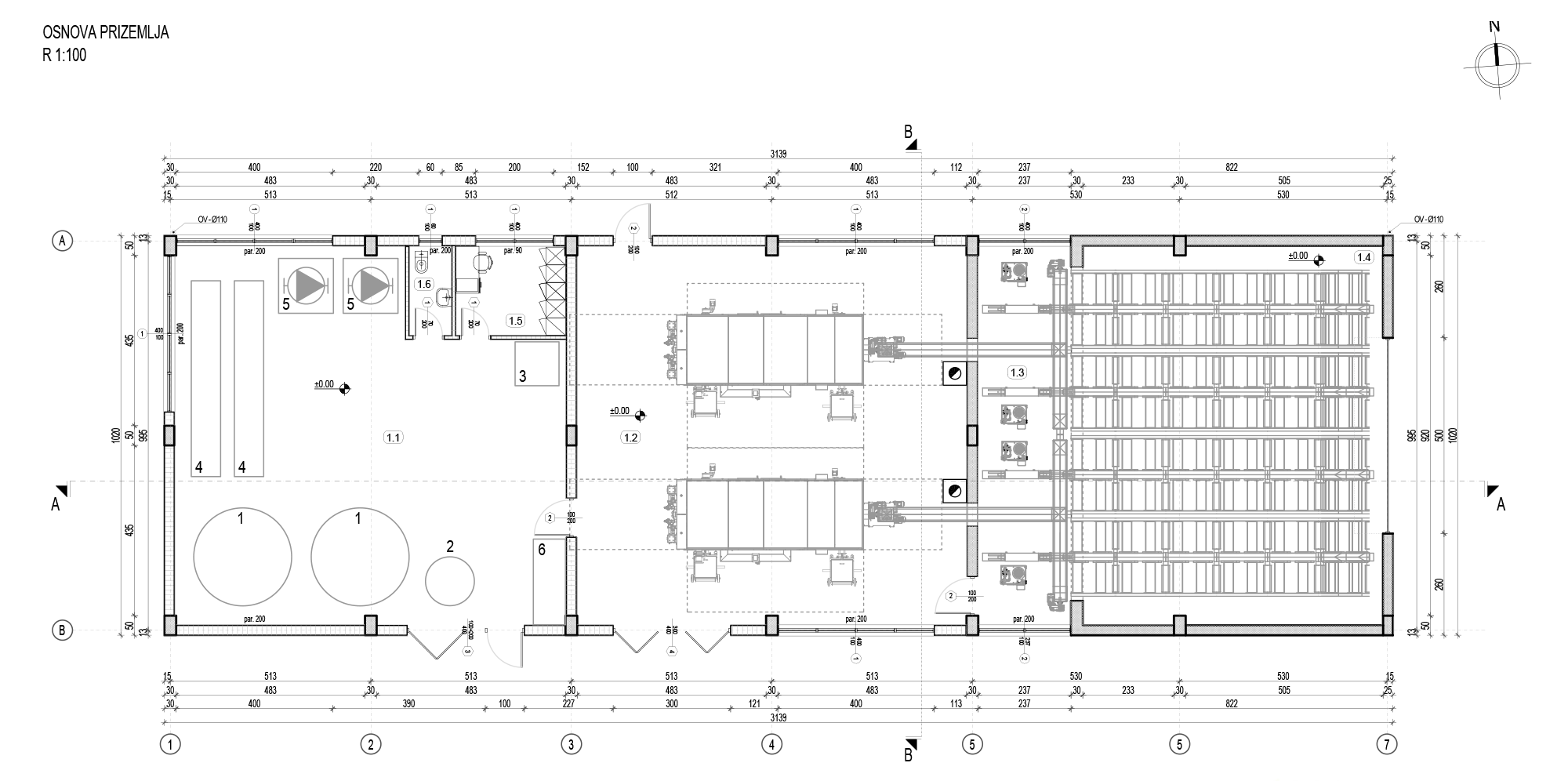
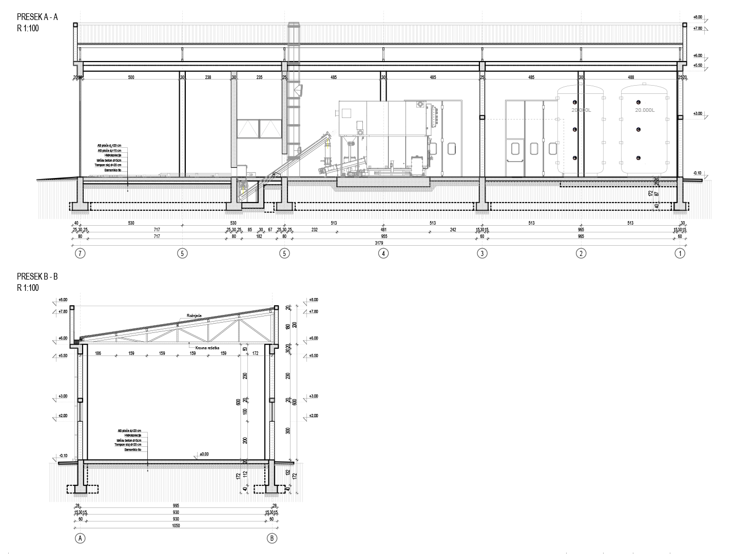
Izgradnja kotlarnice na biomasu u KPZ-u Sremska Mitrovica

 2019.

eng ind instal

Kratak opis: Izgradnja kotlarnice na biomasu u KPZ-u Sremska Mitrovica

Površina: cca 320 m²

Investitor: KPZ Sremska Mitrovica

Lokacija: Sremska Mitrovica, Srbija

Godina: 2019.

Faze: Projekat za izvođenje (Projekat arhitekture, Projekat konstrukcije, Projekat VIK, Projekat hidrantska mreže, Projekat saobraćajnice)