Milica Srećković 26 - Kragujevac, Srbija
  +381 34 206549      kontakt@idestgroup.com
     

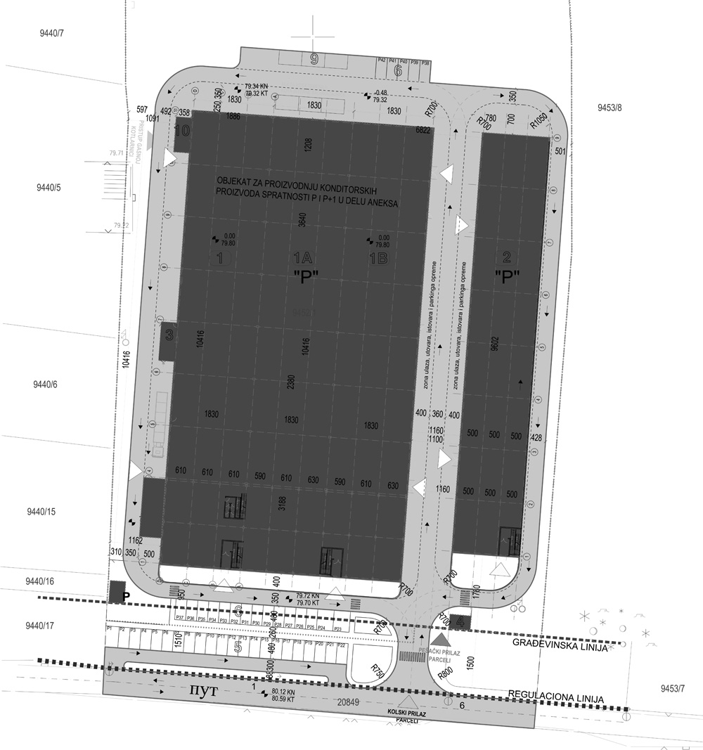
Fabrika pekarsko-konditorskih proizvoda

 2020.

eng civileng ind build arch

Kratak opis: Kompleks za proizvodnju konditorskih proizvoda sadrži trobrodnu halu sa pripadajućim aneksima i jednobrodnu halu. Izgradnja je predviđena fazno.

Površina: 8600

Investitor: AWLL Communications doo

Lokacija: Požarevac, Srbija

Godina: 2018 - 2020.

Faze: Urbanistički projekat, Idejno rešenje, Projekat za gradjevinsku dozvolu, Projekat za izvodjenje