Milice Srećković 26 - Kragujevac, Serbia
  +381 34 206549      kontakt@idestgroup.com
     

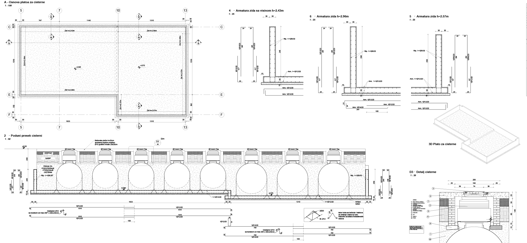
Edificio 64 - Distributore di benzina

 2017.

eng ind civileng

Edificio 64 - Distributore di benzina

Descrizione: Ricostruzione delle stazioni di gas per la fornitura di autoveicoli con carburante

Superficie: 773,70 m², volume totale del serbatoio 500 m³

L’investitore: FCA Serbia

Luogo: Kosovska 4, Kragujevac

Anno: 2014-15-16-17

Fase: La progettazione concettuale / Progetto Preliminare; I documenti di gara; progetto per la esecuzione;