Milica Srećković str. No. 26 - Kragujevac, Serbia
  +381 34 206549      kontakt@idestgroup.com
     

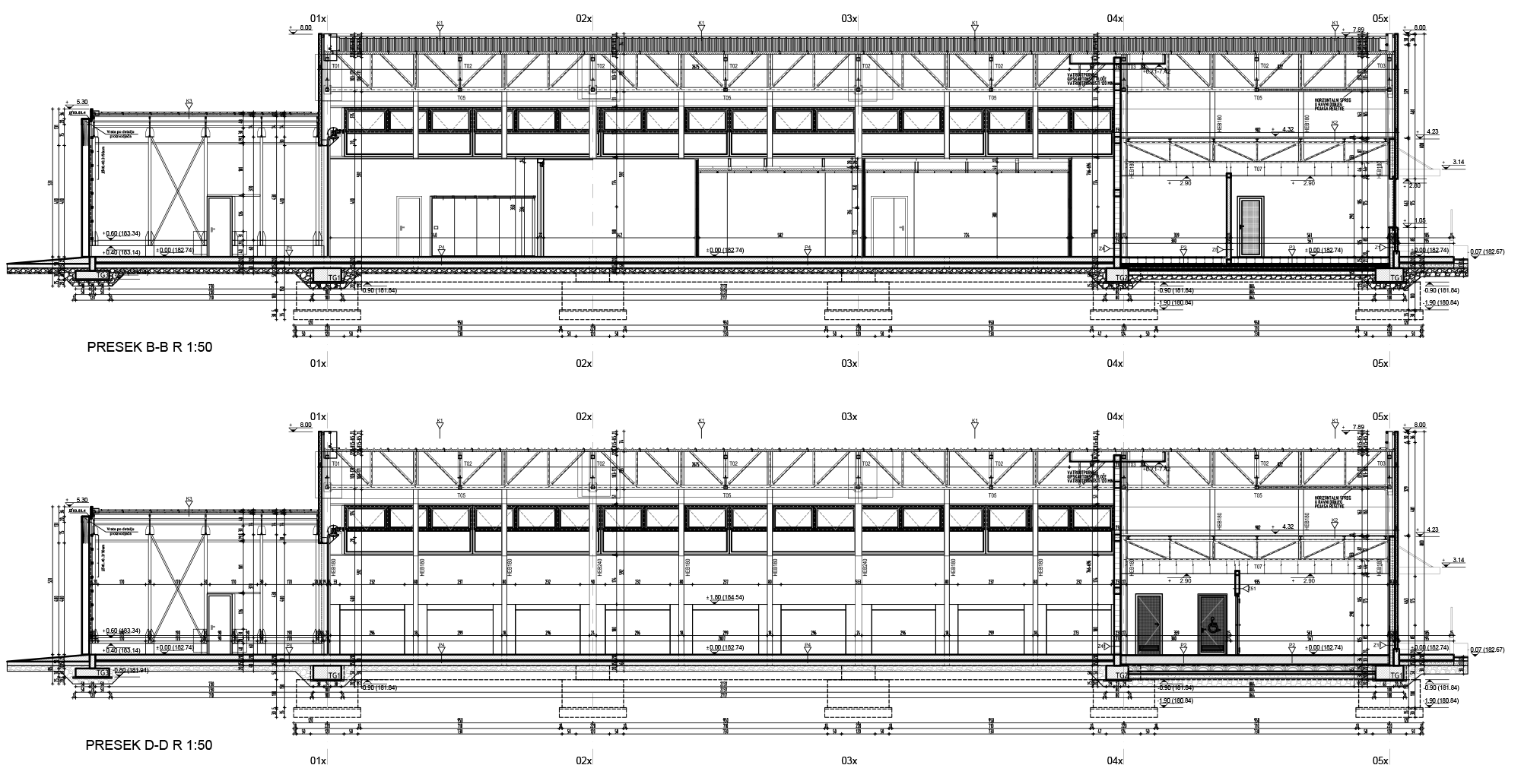
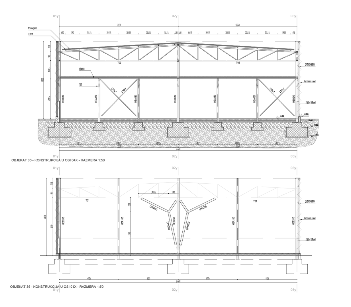
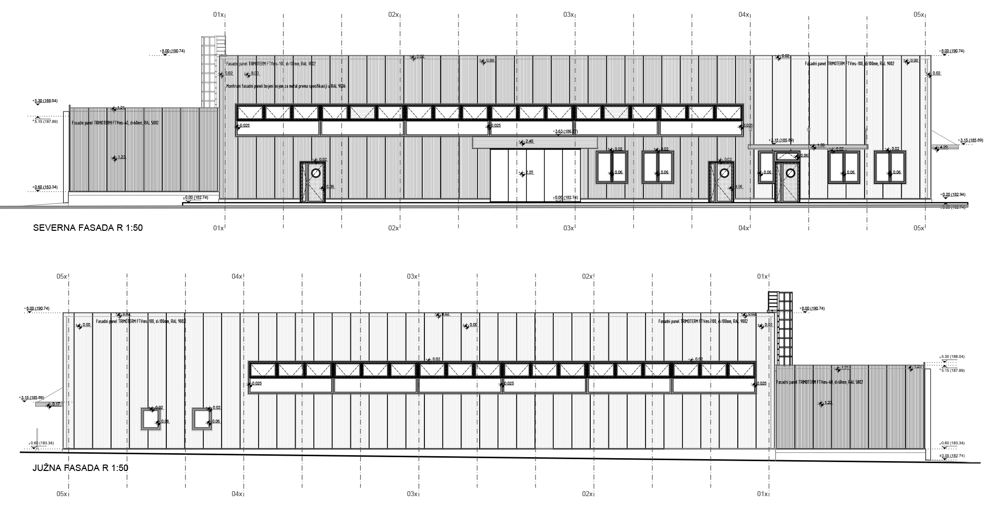
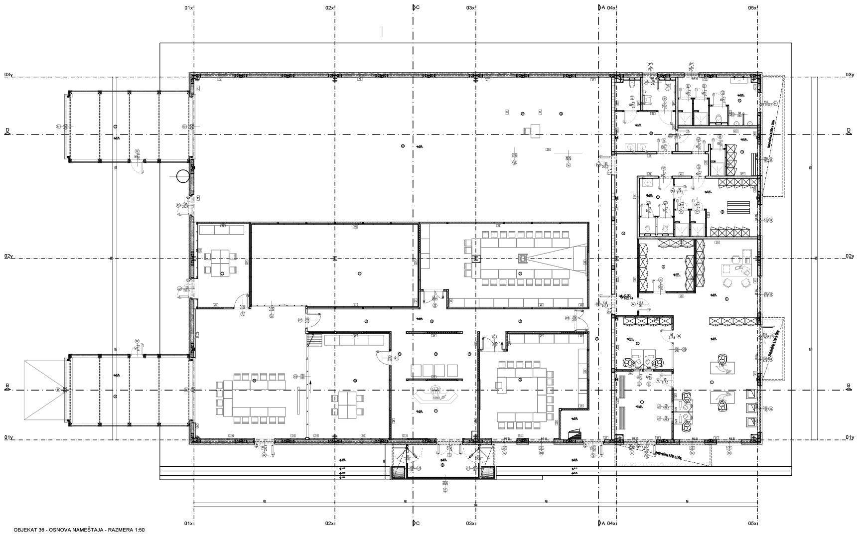
Training Academy, FCA

 2014.

eng ind civileng

Brief: Engineering services on construction Training academy for plant’s staff.

Surface: 1.362,20 m²

Investor: FCA Srbija

Location: Kosovska 4, Kragujevac

Year: 2014-15

Phases: Design brief/Concept; Tender documentation; Main project; Supervision