Milica Srećković str. No. 26 - Kragujevac, Serbia
  +381 34 206549      kontakt@idestgroup.com
     

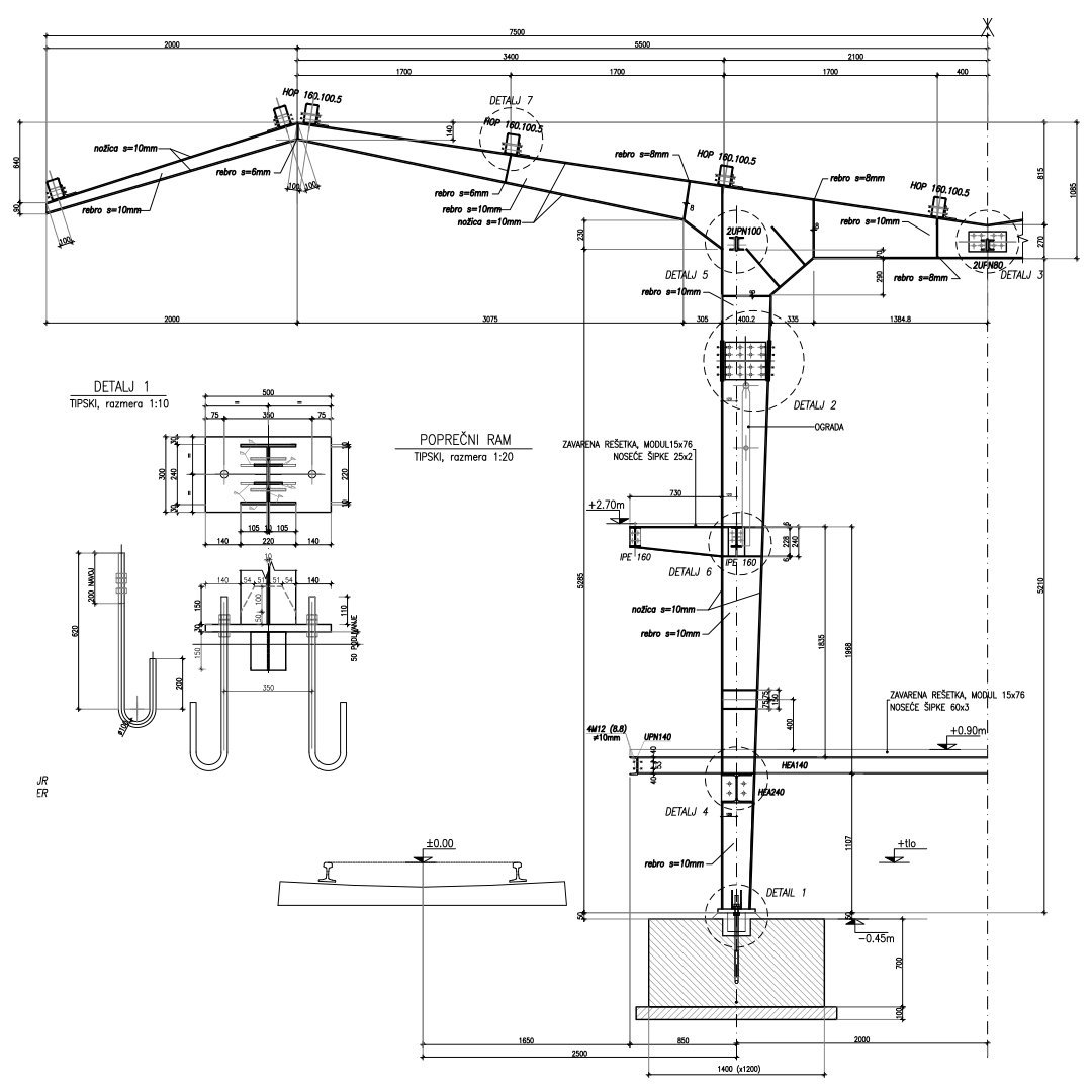
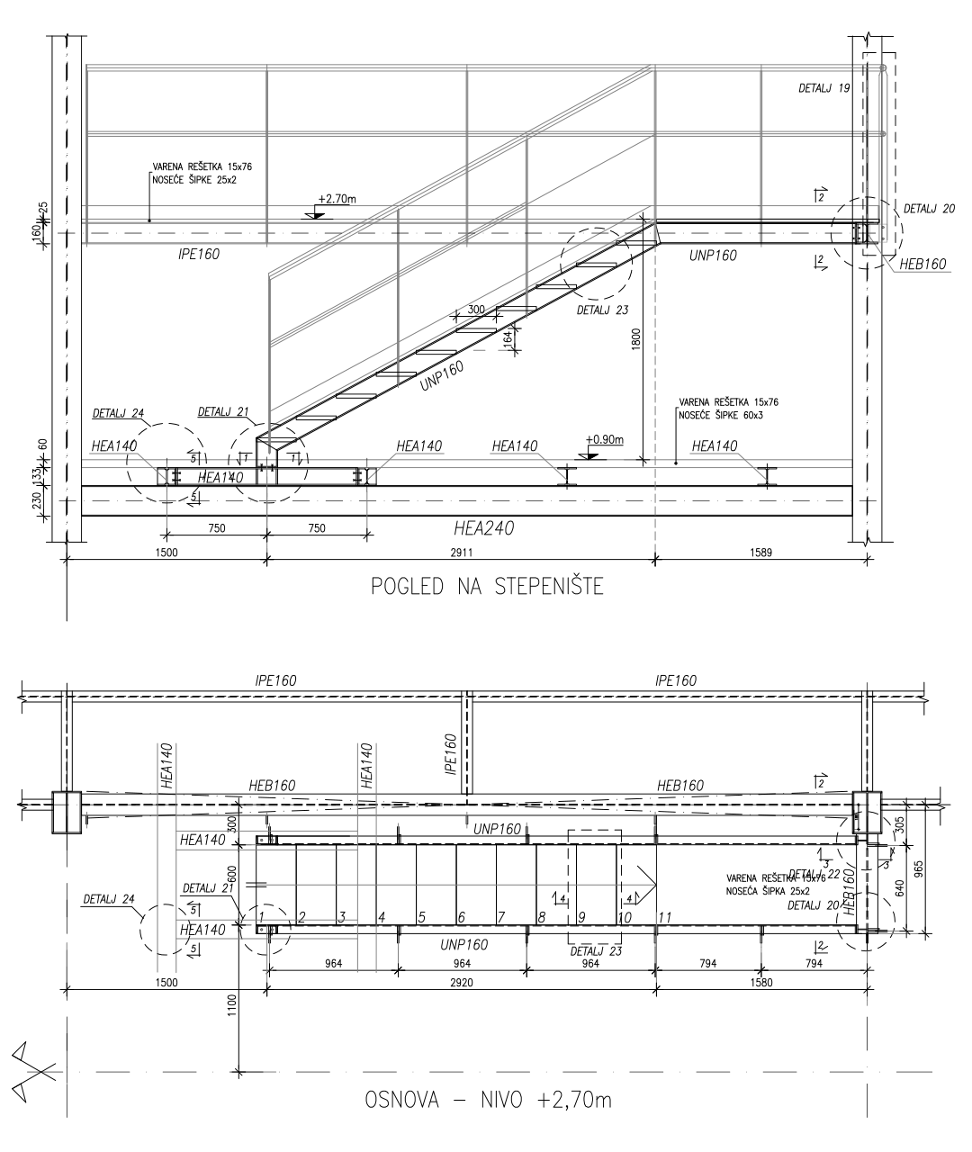
Ralway Canopy, FCA

 2015.

eng ind civileng

Brief: Project documentation for construction of steel railway canopy on loading dock.

Surface: 3.663,69 m²

Investor: FCA Srbija

Location: Kosovksa 4, Kragujevac

Year: 2015

Phases: Conceptual Design (IDR), Building Permit Project (PGD), Executive Project (PZI); Health and safety project