Milica Srećković str. No. 26 - Kragujevac, Serbia
  +381 34 206549      kontakt@idestgroup.com
     

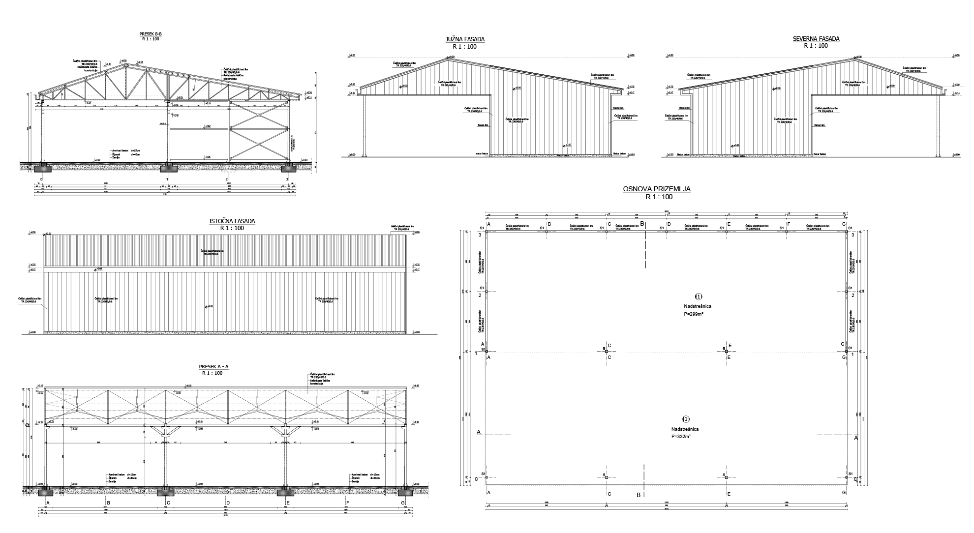
PMC Canopy

 2015.

eng ind civileng

Short description: Development of a project for a building permit for the construction of a PMC canopy

Area: approx. 670m2

Investor: FCA Serbia

Location: Kragujevac, Serbia

Year: 2015

Stages: Project for construction permit