National Museum in city Niš
2020.
arch build
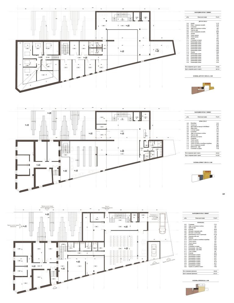
Area: 2300 m2
Location: Niš
Year: 2020
Stages: Competition
The specificity of a given location is reflected in the present cultural heritage that is preserved and protected (the Officers' Home and the building of the old library), the views it achieves (visibility from the river and the fortress). The location is located within the urban city center, block type, with the plot tending to the park in front.
Architectural - urban concept of the building
In terms of form, the museum building consists of a horizontal part, along the regulation line of Jeronimova Street, which retains the structure of the block, and a vertical - tower, the maximum number of floors Ground floor + 6.
Formally, the horizontal building is a natural continuation of the old library, a building that is protected and immersed in the structure of the new building, which makes one facade of the library (interior) part of the interior of the building.
The facade of the horizontal building is designed so that it reads like a modern one, where its orthogonality and pure form are emphasized. The facade is equally treated in its entire surface towards the street, with a combination of white tiles and facade openings. As the materialization here depicts a clean and modern building, so the building of the old library is further emphasized and emphasized by contrast.
Functionally, the old library and the horizontal part of the museum are connected by their contents. The direct connection is realized through administrative purposes, ie. office space. The facade wall of the library, which is oriented towards the interior of the block, becomes part of the interior of the new horizontal building.
The vertical part of the museum - the tower, is retracted inside the plot and the block, withdraws from the regulation line and with its position conditions the formation of a public city space. The public space is also the access staircase to the museum, which is designed to be accessible to the disabled, by combining staircases and ramps of appropriate slope. This public city space is directly connected to the neighboring one, in front of the Officers' Home building. The ramps overcome the existing leveling in the field.
The Kalkan wall of the old library building also becomes a part of this public space, which is extended, drawn with a mural and drawn into the tower. In this way, the connection between the tower and the old library is realized and the importance of the museum building is emphasized
When designing the tower, the principle of interpolation is used, which can be seen in the appearance of the building, observed from the side of the square in front of the Officers' Home. The tower is interpolated with the existing historical buildings and by shifting the plans in relation to the regulation (former library - Officers' Home - museum) the tower does not endanger the existing buildings.
The inspiration for the materialization of the tower comes from the immediate environment. It is natural, stone, textured, similar shades as a fortress. Stone is the basic building element of the Niš Fortress, so it has been applied here as an element of shaping and inspiring the use of traditional materials in an innovative way. It penetrates through the facade, splits it and becomes a dominant part of the interior. By indenting the façade finish, a clear boundary between the interior and the exterior is lost.
Part of the strong stone facade is hollowed out zonally and the entrance of natural light and accentuation of the views from the height of the top floor is achieved, which creates an attractive ambience.