Milica Srećković str. No. 26 - Kragujevac, Serbia
  +381 34 206549      kontakt@idestgroup.com
     

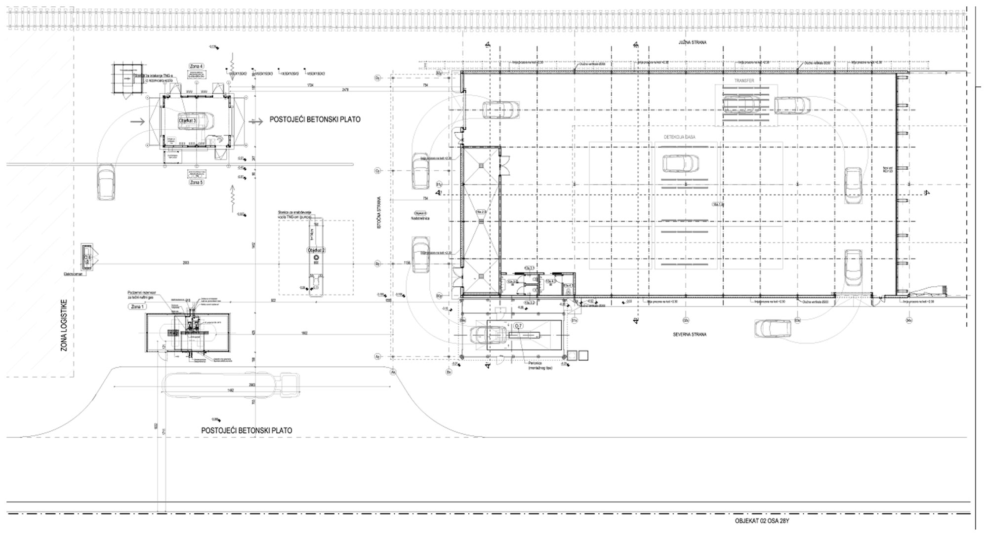
LPG Fuel Station

 2015.

eng civileng ind

Brief: Facility for testing the vehicles LPG system with LPG storage, fuelling station, service area and logistics.

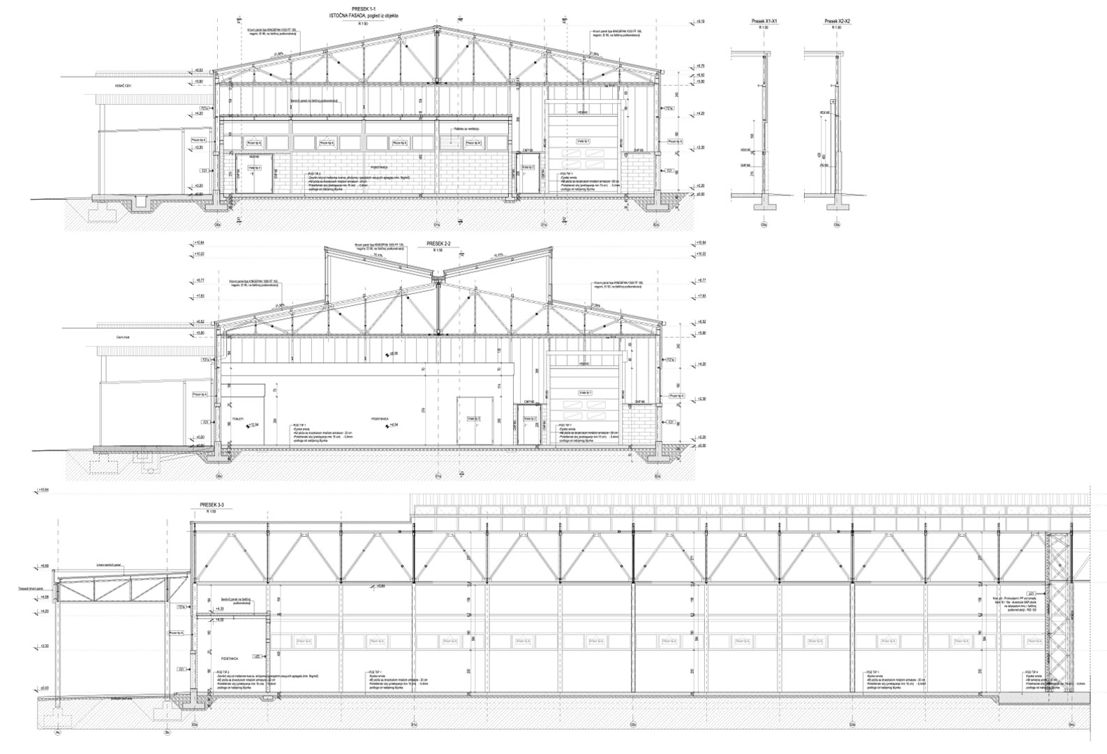
Existing Building 10 is located in the immediate vicinity of the Building 2 and Building 6 within the Zastava-Automobili factory complex, Kragujevac.

During the reconstruction and rehabilitation the facility has been divided in two sections (per phases): 10A axes 00x-04x and 10B axes 04x-14x

Total area: 3,163.70 m², tank volume 15 m³

Investor: FCA Serbia

Location: Kosovska 4, Kragujevac

Year: 2015-16

Phases: Conceptual design / Conceptual project; Tender documentation; PZI - Executive design