Milica Srećković str. No. 26 - Kragujevac, Serbia
  +381 34 206549      kontakt@idestgroup.com
     

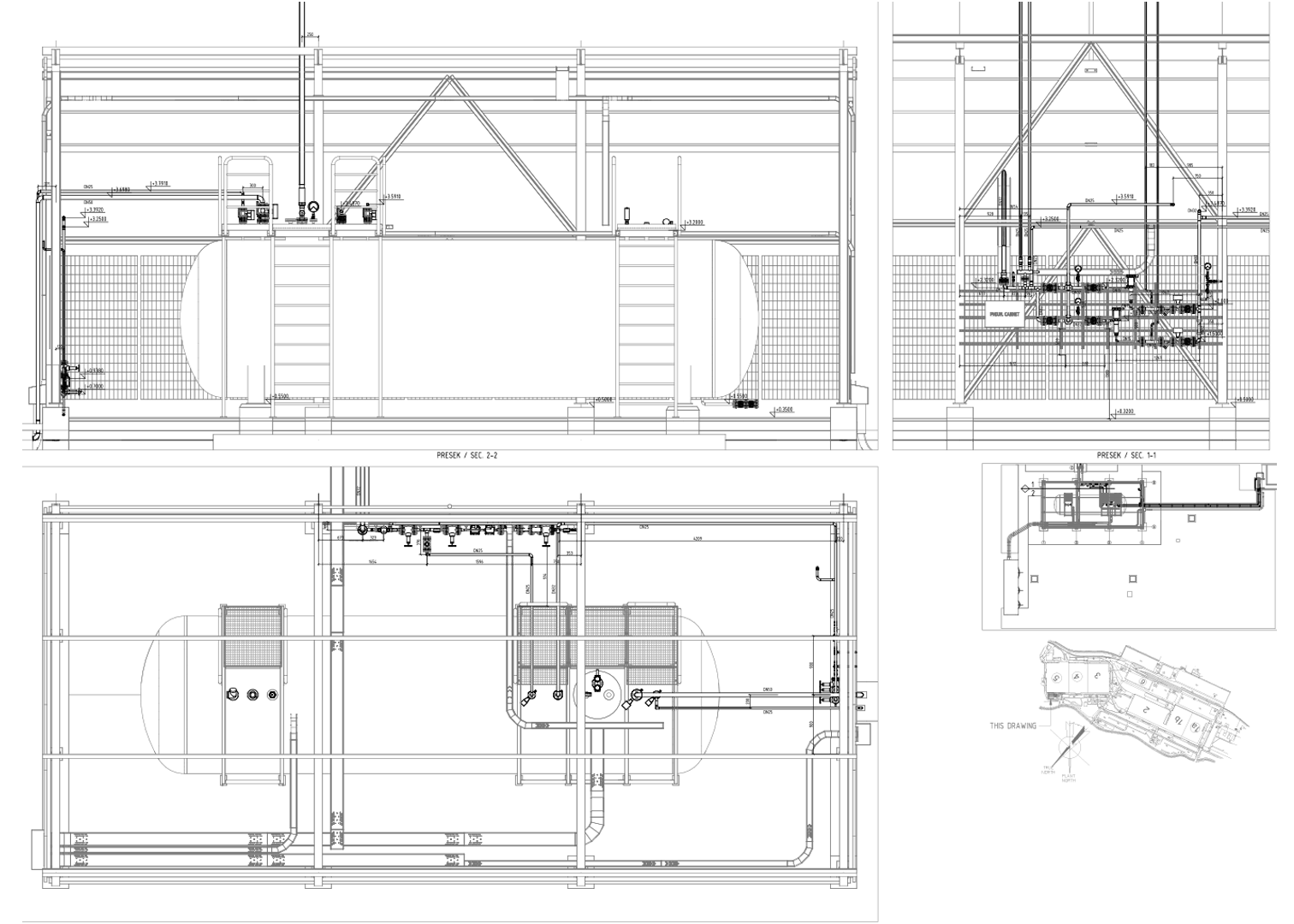
HFO cooling fluid storage and distribution

 2015.

eng ind civileng instal arch

Brief: Engineering services on construction of storage and distribution system for HFO in automotive industry.

Tank capacity: 30 m³

Investor: FCA Srbija

Location: Kosovska 4, Kragujevac

Year: 2015-16

Phase: Design brief/Concept; Tender documentation; Supervision.