Milica Srećković str. No. 26 - Kragujevac, Serbia
  +381 34 206549      kontakt@idestgroup.com
     

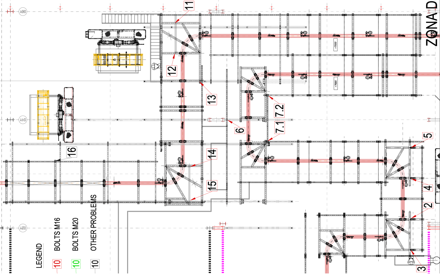
Chassis line in FCA Plant

 2016.

eng ind civileng

Brief description: Inspection and verification of the chassis line structure in the FCA.

Investor: FCA Serbia

Location: Kragujevac, Serbia

Year: 2017

Stages: Inspection and verification of the structure