Milica Srećković str. No. 26 - Kragujevac, Serbia
  +381 34 206549      kontakt@idestgroup.com
     

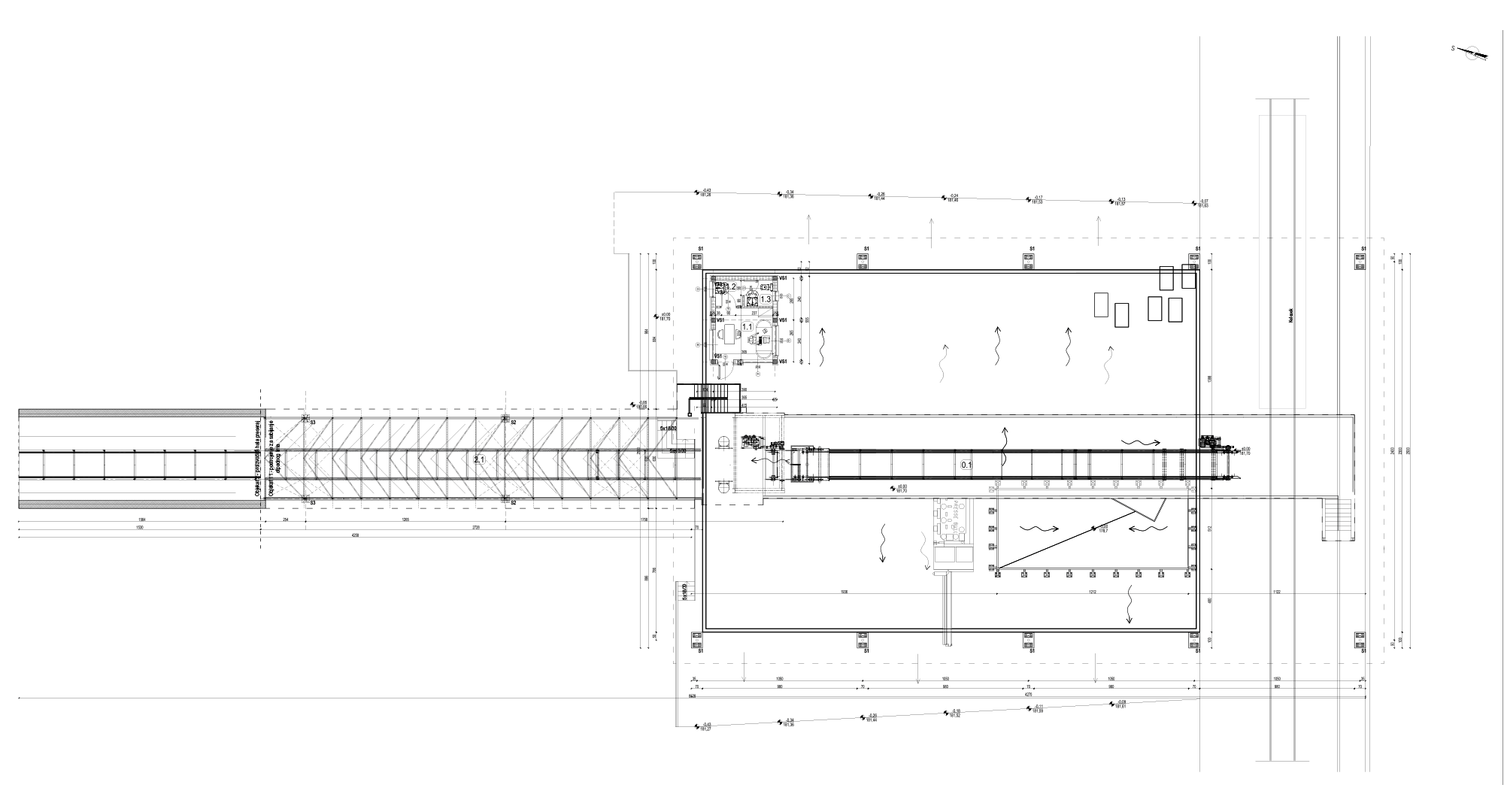
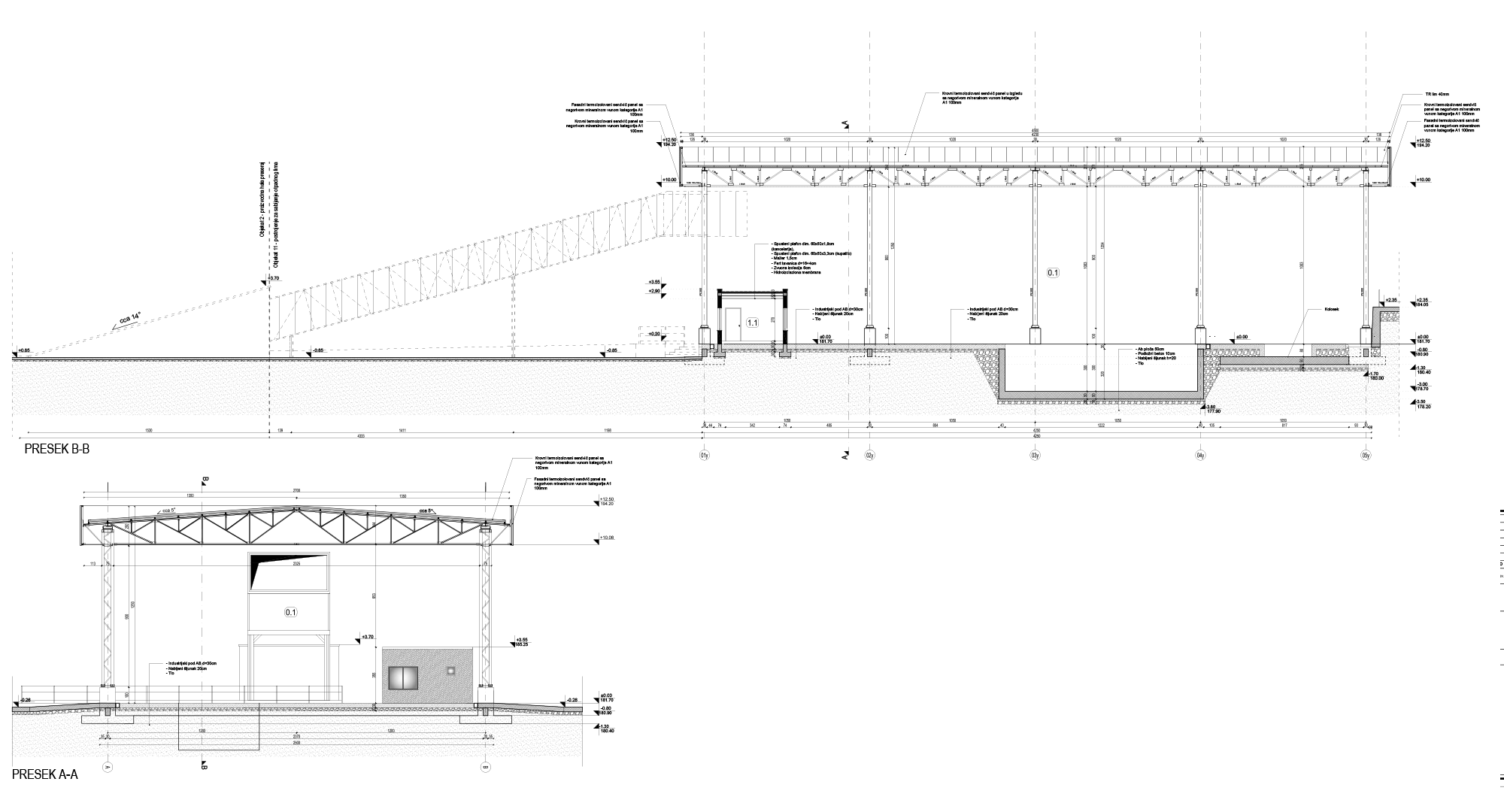
Baler plant - Waste sheet metal compaction plant in FCA

 2018.

eng ind civileng

Short description: The project for the construction of the Balirnica facility is being prepared with the aim of obtaining the Using permit

Location: FCA Serbia, Kragujevac

Year: 2018

Phases: Executive Project (PZI)